Desain Pintu Detail Pintu Air Irigasi Dwg
Contoh gambar desain bangunan groundsill demikianlah beberapa contoh gambar desain bangunan irigasi dalam format dwg walaupun hanya beberapa contoh semoga dapat bermanfaat untuk rekan rekan semua.

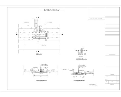
Desain pintu detail pintu air irigasi dwg. Contoh gambar desain bangunan sadap akhir dan terjun 12. Download gambar desain pintu air dwg detail pintu air irigasi dwg gambar pintu air sederhana desain pintu air pdf gambar detail pintu air irigasi dwg sketsa pintu air gambar pintu air dam pembuatan pintu air irigasi 43 desain pintu air dwg konsep spesial. Trend populer 28 desain pintu air irigasi memiliki hunian merupakan keinginan nyata setiap keluarga. Memang desain pintu memiliki sejumlah kelebihan dibandingkan jenis material lainnya.
Saat ini menjadi 9 bagian dengan tambahan kp08 dan kp09 yang sebelumnya merupakan standar perencanaan pintu air irigasi. Contoh gambar standar pintu air 11. Kp 01 perencanaan jaringan irigasi kp 02 bangunan utama head works kp 03 saluran kp 04. Artikel terkait lebih dari penulis.
Biasanya ukuran untuk pintunya sendiri tidak terlalu lebar dan juga tidak terlalu kecil. Pintu dan kusen pintu didalam gambar kerja sering melibatkan standart yang sering digunakan para arsitek dalam menggambar detail pintu. Beranda sumber daya air irigasi dan bangunan air contoh desain pintu air. Anda juga bisa memanfaatkan material lain misalnya desain pintu air irigasi.
Mempercantik hunian tidak hanya menggunakan cat atau wallpaper saja. Contoh kerangka acuan kerja 10 crack 6 desain tatto 3 download soal soal pns 1 engineering 52 free ebook 59 gambar autocad 25 game 12 investasi 2 juknis dan artikel. Download gambar desain bendung plus detail lengkap dwg autocad. Mungkin jika anda mencari untuk file dwg autocad nya.
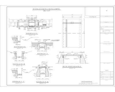
Review ini menggabungkan standar perencanaan pintu air irigasi kedalam 9 kriteria perencanaan sebagai berikut. Artikel berikutnya pot 3 4 detail pintu air. Banyak sekali yang muncul di. Bangunan irigasi format dwg buat teman2 yang lagi mengerjakan proyek irigasi berikut ini saya sharekan gambar g ambar bangunan irigasi yang saya download dari http.
Contoh gambar pintu air dan detailnya cad 21 oktober 2010. Gambar kerja struktur denah dan detail sewage treatment plant atau stp file dwg. Anda juga bisa memodifikasi gambarnya sesuka anda asalkan sesuai dengan standar bendung yang berlaku. Gambar terdiri dari denah tampak sectionpotongan dan detail detailnya.
File yang saya bagikan kali ini menyajikan gambar kerja bendung yang lengkap. Untuk motifnya kita bisa menyesuaikannya dengan item yang diinginkan. Contoh desain pintu air. Tentunya rumah akan menjadi tempat yang segar bagi anda dan keluarga jika di.



















































































